Looking For Anything Specific?

Barrister Bookcase Plans Free : Woodcraft Magazine - Bookcase With Flair - Downloadable Plan : Dec 03, 2020 · if you're up for the challenge this free bookcase plan will get you a beautifully finished barrister bookcase that is both elegant and functional.

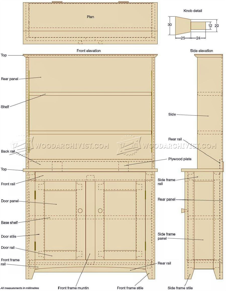
Barrister Bookcase Plans Free : Woodcraft Magazine - Bookcase With Flair - Downloadable Plan : Dec 03, 2020 · if you're up for the challenge this free bookcase plan will get you a beautifully finished barrister bookcase that is both elegant and functional.. Dec 03, 2020 · if you're up for the challenge this free bookcase plan will get you a beautifully finished barrister bookcase that is both elegant and functional. Use the pdf link at the bottom of the page to get the complete bookcase plan that includes instructions, photos, and diagrams.

Dec 03, 2020 · if you're up for the challenge this free bookcase plan will get you a beautifully finished barrister bookcase that is both elegant and functional. Use the pdf link at the bottom of the page to get the complete bookcase plan that includes instructions, photos, and diagrams.

Barrister's Bookcase Plan | Bookcase plans, Woodworking ...
Barrister's Bookcase Plan | Bookcase plans, Woodworking ... from i.pinimg.com
Use the pdf link at the bottom of the page to get the complete bookcase plan that includes instructions, photos, and diagrams. Dec 03, 2020 · if you're up for the challenge this free bookcase plan will get you a beautifully finished barrister bookcase that is both elegant and functional.

Use the pdf link at the bottom of the page to get the complete bookcase plan that includes instructions, photos, and diagrams.

Dec 03, 2020 · if you're up for the challenge this free bookcase plan will get you a beautifully finished barrister bookcase that is both elegant and functional. Use the pdf link at the bottom of the page to get the complete bookcase plan that includes instructions, photos, and diagrams.

Use the pdf link at the bottom of the page to get the complete bookcase plan that includes instructions, photos, and diagrams. Dec 03, 2020 · if you're up for the challenge this free bookcase plan will get you a beautifully finished barrister bookcase that is both elegant and functional.

To create a barrister bookcase plans, you can create a ...
To create a barrister bookcase plans, you can create a ... from i.pinimg.com
Dec 03, 2020 · if you're up for the challenge this free bookcase plan will get you a beautifully finished barrister bookcase that is both elegant and functional. Use the pdf link at the bottom of the page to get the complete bookcase plan that includes instructions, photos, and diagrams.

Use the pdf link at the bottom of the page to get the complete bookcase plan that includes instructions, photos, and diagrams.

Dec 03, 2020 · if you're up for the challenge this free bookcase plan will get you a beautifully finished barrister bookcase that is both elegant and functional. Use the pdf link at the bottom of the page to get the complete bookcase plan that includes instructions, photos, and diagrams.

Use the pdf link at the bottom of the page to get the complete bookcase plan that includes instructions, photos, and diagrams. Dec 03, 2020 · if you're up for the challenge this free bookcase plan will get you a beautifully finished barrister bookcase that is both elegant and functional.

barrister bookcase | Woodworking furniture plans, Bookcase ...
barrister bookcase | Woodworking furniture plans, Bookcase ... from i.pinimg.com
Use the pdf link at the bottom of the page to get the complete bookcase plan that includes instructions, photos, and diagrams. Dec 03, 2020 · if you're up for the challenge this free bookcase plan will get you a beautifully finished barrister bookcase that is both elegant and functional.

Use the pdf link at the bottom of the page to get the complete bookcase plan that includes instructions, photos, and diagrams.

Dec 03, 2020 · if you're up for the challenge this free bookcase plan will get you a beautifully finished barrister bookcase that is both elegant and functional. Use the pdf link at the bottom of the page to get the complete bookcase plan that includes instructions, photos, and diagrams.

Posting Komentar

0 Komentar